Объявление
Аренда. Помещение для Вашего бизнеса в Киеве. - Другие товары для дома
Предложения фирм: Другие товары для дома, Украина, Киев и областьКод: 251131 Создано: 18-08-2012 05:32
Цена: 1 грн. ₴
|
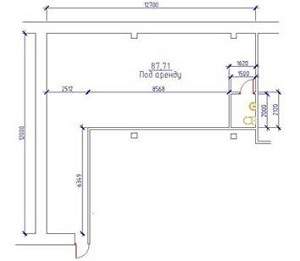
Аренда, торговых помещений, без посредников, в Киеве: 1. Киев, ул. Малышка, 15/1 Помещение 87.7 м.кв., 1-й этаж, отдельный выход, хороший автомобильный, пешеходный трафик, прод. маркет, рынок, «Детский мир», густонаселенный массив. Цена 22.000.00 грн. 2. Киев, пр-т Победы, 20 Помещение 68.5 м.кв., 1й этаж, отдельный выход, прод. маркет, аптека, магазин электроники МКС, отличный авто - пешех трафик, густонаселенный. Цена 26.000.00 грн. Евгений +38(050)4414116 |
|
Картинки
Контактные данные
| Имя: |
Евгений |
|
| Контактный телефон: |
0504414116 |
|
| Мобильный телефон: |
0504414116 |


