Продам: Чертежи для строителей - Купить: Чертежи для строителей, Киев - Продажа: Прочее для строительства и ремонта Киев - 489453

Объявление

Чертежи для строителей - Прочее для строительства и ремонта

Продам, предлагаю - частное лицо: Прочее для строительства и ремонта, Украина, Киев и область
Назад к списку  Распечатать
Код: 489453 Создано: 13-03-2017 19:33

Цена: 10 грн. ₴

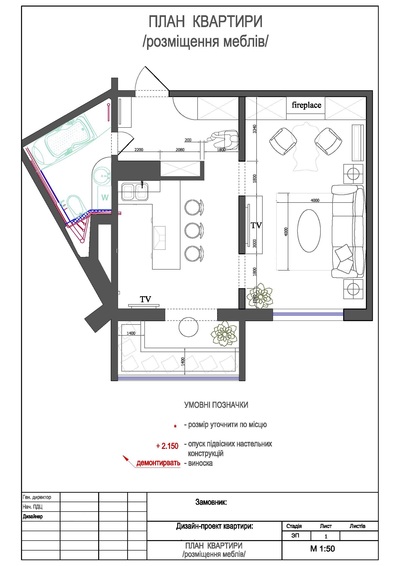
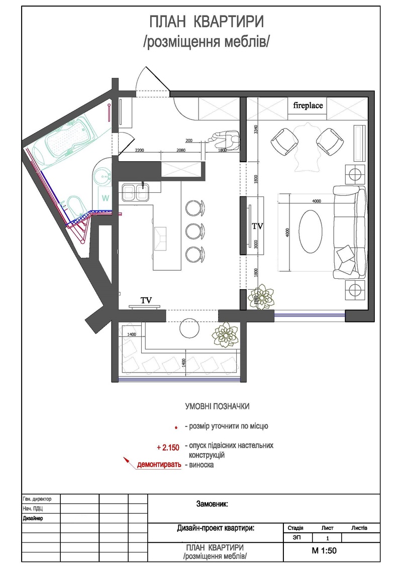
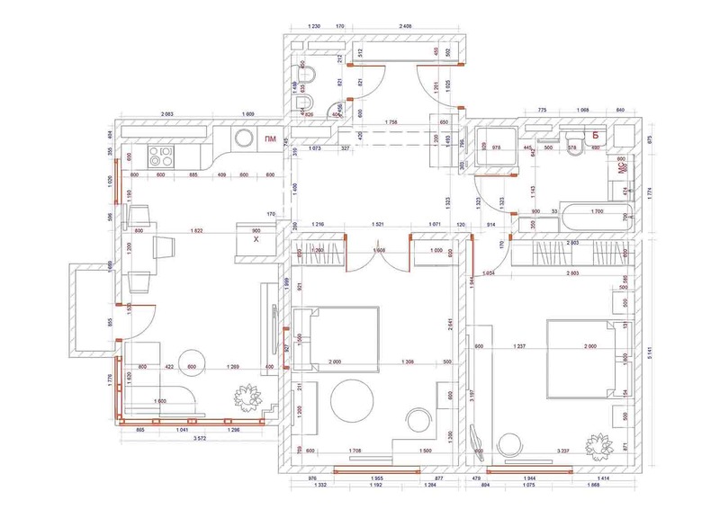
Чертежи для Ремонта Вы приобрели квартиру или решили сделать перепланировку? Не знаете с чего начать и как объяснить свои идеи строителям? Не хотите заказывать дизайн интерьера полностью, но испытываете сложности с созданием планировочного решения? Мы можем решить эту задачу за Вас. В результате Вы получите планировку с размерами для строителей. А также план мебели, где вся мебель и сантехника про масштабирована. Проходы, коридоры и т.п. сделаны в соответствии с нормативными требованиями. Вы сможете наглядно показать, где нужны розетки, включатели, куда будут открываться двери, сколько нужно напольного покрытия, плитки и т.д. Стоимость планировки 10 грн/кв.м(но не меньше 500 грн. за объект). Готовы подготовить и другие чертежи. Дизайнеры, Юлия и Ирина +38 (050) 420 23 71 +38 (063) 276 62 66 yvin.design@gmail.com http://yvin-design.com.ua/


Картинки

Реклама

Контактные данные

Имя: Студия дизайна ЮВИН
 
Контактный телефон: +38 (050) 420 23 71
 
Мобильный телефон: +38 (063) 276 62 66
 

Задать вопрос владельцу объявления

Email *
 
Повторите e-mail адрес *
 
Контактная информация
Имя:  
Контактный телефон:  
Мобильный телефон:  
Ваше сообщение будет отправлено на email адрес владельца объявления.: *





Реклама






FreeAds.in.ua - бесплатные объявления Украины
Доска объявлений Киева - AdMir.kiev.ua



Строительный портал ДивоСтрой Киев - divostroi.kiev.ua





Наша кнопка:
еКомиссионка

Код кнопки