Объявление
Ремонт квартир - дизайн интерьера, Киев - Прочее для строительства и ремонта
Продам, предлагаю - частное лицо: Прочее для строительства и ремонта, Украина, Киев и областьКод: 694759 Создано: 28-06-2017 17:17
Цена: 15 USD $
|
Создаю индивидуальные дизайн-проекты квартир и домов в точных и детальных чертежах для осуществления ремонта строительной компанией. Сопровождаю проект на всех этапах – от подбора отделки, контроля выполнения строителями дизайн-проекта до наполнения объекта мебелью, сантехникой и другими объектами. Предоставляю схемы, эскизы для проектирования мебели под заказ. Профессионально подбираю текстильное оформление иорганизовываю пошив по индивидуальным размерам. Сотрудничество со мной позволит Вам грамотно распорядиться площадью и избежать возможных ошибок в ремонте. Вы получите эксклюзивный интерьер, сделанный с душой, неподвластный времени. Тел. 050-581-30-83 Киев http://21-design.com |
|
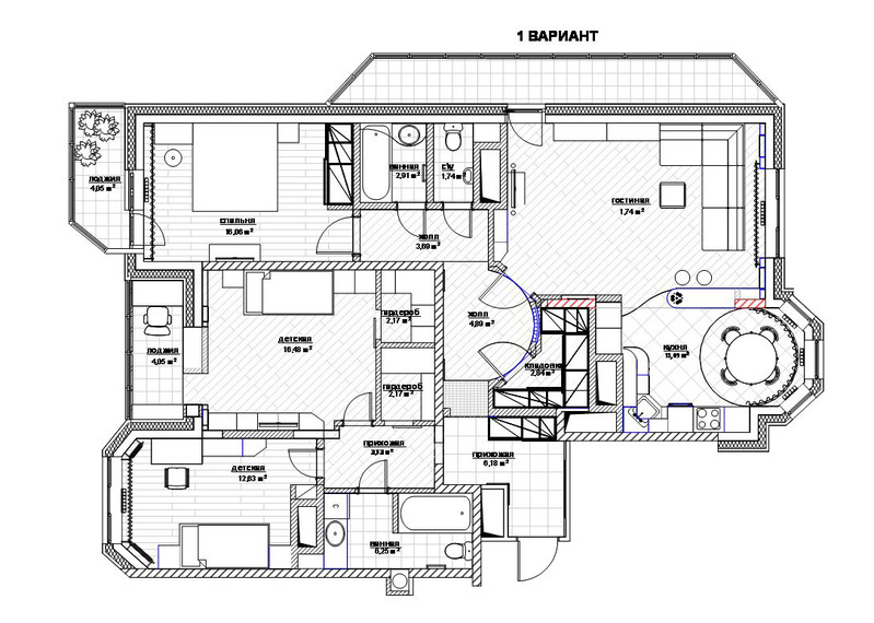
Картинки
Контактные данные
| Имя: |
XXI-design |
|
| Контактный телефон: |
050-581-30-83 |
|
| Мобильный телефон: |
050-581-30-83 |


