Продам: Продам недвижимость в Гнидын (Гнедин) - Купить: Продам недвижимость в Гнидын (Гнедин), Киев - Продажа: Другие товары для дома Киев - 784431

Объявление

Продам недвижимость в Гнидын (Гнедин) - Другие товары для дома

Продам, предлагаю - частное лицо: Другие товары для дома, Украина, Киев и область
Назад к списку  Распечатать
Код: 784431 Создано: 12-10-2019 14:45

Цена: 3 400 000 грн. ₴

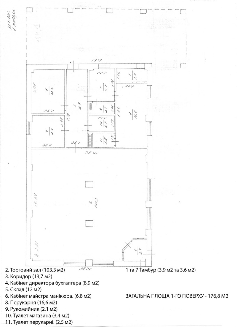
ПРОДАЖА коммерческой недвижимости. Комплекс находится в 4-х км от Киева, с. Гнидын Бориспольского района. Отдельно стоящее 3-х этажное здание площадью 520кв. м.+ крытая летняя площадка 75кв.м. Комплекс расположен на берегу озера с прекрасным видом на лес. На первом этаже (180 кв.м.) расположен торговый зал 103 кв.м.+ кабинеты; На втором этаже - зал 124 кв.м+ кабинеты + большая крытая летняя площадка; Третий этаж - свободная планировка. Внутренние перегородки - не несущие. Возможна перепланировка. Можно сделать одно открытое пространство. Участок 9 соток. Электроэнергия - 80 кВт. Есть скважина. Центральная канализация, автономное отопление. Пожарная и охранная сигнализация. Паркинг. Работает высокоскоростной Интернет. *** Александр - 0631095299


Картинки

Реклама

Контактные данные

Имя: Александр
 
Контактный телефон: 0631095299
 

Задать вопрос владельцу объявления

Email *
 
Повторите e-mail адрес *
 
Контактная информация
Имя:  
Контактный телефон:  
Мобильный телефон:  
Ваше сообщение будет отправлено на email адрес владельца объявления.: *





Реклама






FreeAds.in.ua - бесплатные объявления Украины
Доска объявлений Киева - AdMir.kiev.ua



Строительный портал ДивоСтрой Киев - divostroi.kiev.ua





Наша кнопка:
еКомиссионка

Код кнопки