Продам: Продажа дома.Макаров - Купить: Продажа дома.Макаров, Киев - Продажа: Продам прочее Киев - 280045

Объявление

Продажа дома.Макаров - Продам прочее

Продам, предлагаю - частное лицо: Продам прочее, Украина, Киев и область
Назад к списку  Распечатать
Код: 280045 Создано: 22-03-2013 21:16

Цена: 110 000 USD $

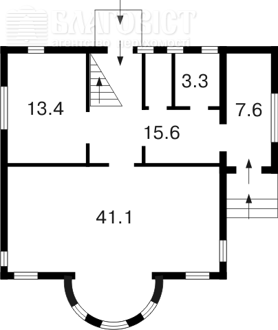
Кількість кімнат: 4 Готовність: 90% Рік будівлі: 2010 Стіни: піноблок Покрівля: мет.черепиця Поверхів.: 2 Площа – загальна: 160 м2 – пл. ділянки: 7 соток Комунікації – газ: є – вода: свердловина (вода заведена в будинок) – гор. вода: котел – електрика: є – каналізація: централізована – опалення: автономне Додаткова інформація: Жила площа 89.6 кв.м,кухня13.4 кв.м., 1-й поверх = 83 кв.м, 2-й поверх=75 кв.м, 3 санвузла, ремонт 2011року,вікна металопластикові, перекриття між поверхами залізобетонні плити,стіни і дах утепленні мін.ватою 150мм,поли втеплені пінополістиролом і стяжка,є місце під камін з вбудованою трубою,з вулиці поклеїв пінопласт та нанесена шпаклівка короїд. Внутрішні роботи закінчені на 90%,готові кімнаті:кухня,дві спальні,два сан.вузли.Всі інші кімнати приготовлені під по краску чи по клейку шпалер. Опалення,гаряча та холодна вода,електрика підключено і введенні в експлуатацію. Сходи дерев”яні. Є проектна документація на будування гаража, лазні та погріб. Дорога асфальтована. До магазину 5хв пішки,до річки 10хв пішки,до центра і базару 25хв пішки,до школи 15 хв пішки. До Києва 50км.


Картинки

Реклама

Контактные данные

Имя: жора
 

Задать вопрос владельцу объявления

Email *
 
Повторите e-mail адрес *
 
Контактная информация
Имя:  
Контактный телефон:  
Мобильный телефон:  
Ваше сообщение будет отправлено на email адрес владельца объявления.: *





Реклама






FreeAds.in.ua - бесплатные объявления Украины
Доска объявлений Киева - AdMir.kiev.ua



Строительный портал ДивоСтрой Киев - divostroi.kiev.ua





Наша кнопка:
еКомиссионка

Код кнопки