Продам: 1комн квартира 43м Киев - Пролиски 14000 грн/м2 - Купить: 1комн квартира 43м Киев - Пролиски 14000 грн/м2, Киев - Продажа: Продам прочее Киев - 750181

Объявление

1комн квартира 43м Киев - Пролиски 14000 грн/м2 - Продам прочее

Продам, предлагаю - частное лицо: Продам прочее, Украина, Киев и область
Назад к списку  Распечатать
Код: 750181 Создано: 07-10-2018 09:54

Цена: 598 220 грн. ₴

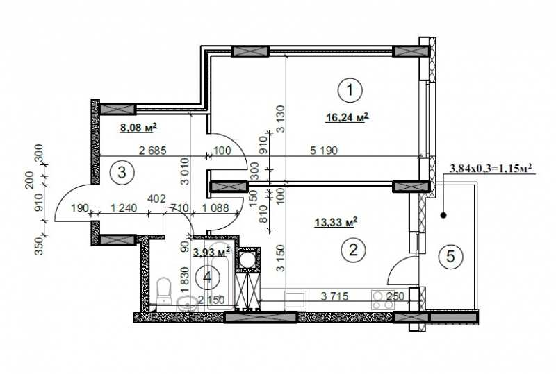
Продажа 1 комнатной квартиры - 42,73 м2 в строящемся доме от надежного застройщика Геос. Завершение строительства второй очереди 4 квартал 2019 года. Первая очередь из 2х домов уже построена и сдана. Дом находится в 15 мин маршруткой до метро Бориспольская, Киев - Пролиски, ул. Счастливая Параметры квартиры: 1. Жилая комната - 16,24 м2 2. Кухня - 13,33 м2 3. Коридор - 8,08 м2 4. Санузел совмещенный - 3,93 м2 5. Балкон не застеклен - 1,15 м2 Общая площадь квартиры - 42,73 м2 Есть выбор этажей и других квартир 1 и 2 комнатные. Есть рассрочка платежей по декабрь 2019 год без привязки к курсам валют. Особенности: Расположение: Пролиски - Киев, очень хорошее, тихое, спокойное место без всякой городской суеты - рядом лесок сосновый, березовый, магазины, детский садик, школа, спортивный центр, поликлиника, супермаркет Фози. 2. Облагорожена территория: площадка для детей, спортивная площадка, зеленые насаждения, газоны. 3. Дом строится по монолитно каркасной технологии с утеплением минеральной ватой - это экологически чистый материал и повышает теплосбережение. 4. Индивидуальное отопление - газовый котел в квартире 5. Дом от надежного застройщика GEOS - построено и введено в эксплуатацию 9 крупных жилых комплекса, 8 жилых объектов в процессе строительства. По мере хода и завершения строительства, цены растут, актуальные цены уточняйте по телефону. Приезжайте в отдел продаж на строительстве, выбирайте себе лучшую квартиру! Звоните (063)4797285 Купить квартиру в Киеве, купить квартиру в пригороде Киева, квартиры в пригороде киева купить.


Картинки

Реклама

Контактные данные

Имя: Олег
 
Контактный телефон: (063)4797285, 0502157859
 

Задать вопрос владельцу объявления

Email *
 
Повторите e-mail адрес *
 
Контактная информация
Имя:  
Контактный телефон:  
Мобильный телефон:  
Ваше сообщение будет отправлено на email адрес владельца объявления.: *





Реклама






FreeAds.in.ua - бесплатные объявления Украины
Доска объявлений Киева - AdMir.kiev.ua



Строительный портал ДивоСтрой Киев - divostroi.kiev.ua





Наша кнопка:
еКомиссионка

Код кнопки