Продам: Таунхаус «Borispol Village» от владельца - Купить: Таунхаус «Borispol Village» от владельца , Киев - Продажа: Продам прочее Киев - 808511

Объявление

Таунхаус «Borispol Village» от владельца - Продам прочее

Продам, предлагаю - частное лицо: Продам прочее, Украина, Киев и область
Назад к списку  Распечатать
Код: 808511 Создано: 25-11-2020 22:56

Цена: 55 000 USD $

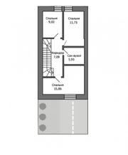
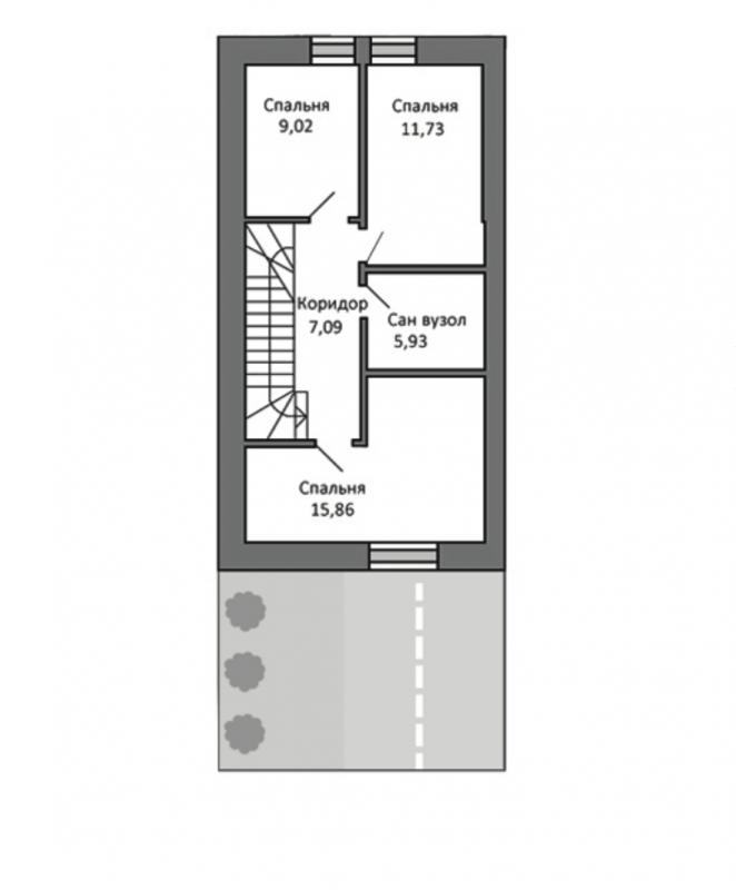
Продаётся таунхаус от владельца в «Borispol Village» Киевская область, г. Борисполь, ул. Полевая 1/1 Таунхауз состоит из 3 этажей. На цокольном расположены гараж и хозяйственные помещения, на первом – кухня и гостинная, а на втором – 3 спальни. Простая и функциональная планировка позволит использовать каждый из 149 кв.м. площади с максимальной эффективностью. Так же для дома предусмотрен задний двор. Окна дома выходят на тихий частный сектор. Территория ЖК 2,67 га. На территории есть футбольное поле, детская площадка и много места для прогулок. Стены из кирпича с утеплением и с лицевым кирпичом. Перегородки кирпич, пеноблок. Установлены металлопластиковые окна со стеклопакетами. Установлены обогревательные элементы по всему дому (батареи, газовый котёл). Установлен счётчик газа, электричества, холодной и горячей воды. Стяжка полов. Штукатурка стен во всех комнатах, кроме санузлов. В дом заведен газ, вода, электричество. По всему дому разведены электрокоммуникации, вода Установлены ворота в гараж. Установлена запорная арматура на отводах стояков. Тел.: (067) 239-13-14, (093) 703-16-33. Евгений.


Картинки

Реклама

Контактные данные

Имя: Евгений
 
Контактный телефон: 0937031633
 
Мобильный телефон: 0672391314
 

Задать вопрос владельцу объявления

Email *
 
Повторите e-mail адрес *
 
Контактная информация
Имя:  
Контактный телефон:  
Мобильный телефон:  
Ваше сообщение будет отправлено на email адрес владельца объявления.: *





Реклама






FreeAds.in.ua - бесплатные объявления Украины
Доска объявлений Киева - AdMir.kiev.ua



Строительный портал ДивоСтрой Киев - divostroi.kiev.ua





Наша кнопка:
еКомиссионка

Код кнопки